• 鼓风式大锅灶
  • 鼓风式大锅灶
  • 鼓风式大锅灶
  • 鼓风式大锅灶

鼓风式大锅灶

拨打电话,立即联系北京大江南厨房设备有限公司
在线时间:
周一至周日: 8:00-18:00
微信公众号
微信公众号
手机图标服务热线:
15117922092
+
详情介绍

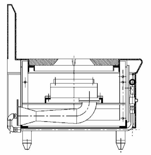
(1)炉台面与支架之间采用20mm厚纤维毯做隔热绝缘;台面向前倾斜,前端有集水槽,并配有过滤篦子,集水槽左端配有50mm排水接口。

(2)炉外结构选用优质不锈钢板,上设有优质摇摆水龙头,可根据需要订做,可设计自然风式。

(3)可根据厨房现场订做其它异形款式及尺寸,分别配制制式点火棒或节能电子点火器。

15117922092