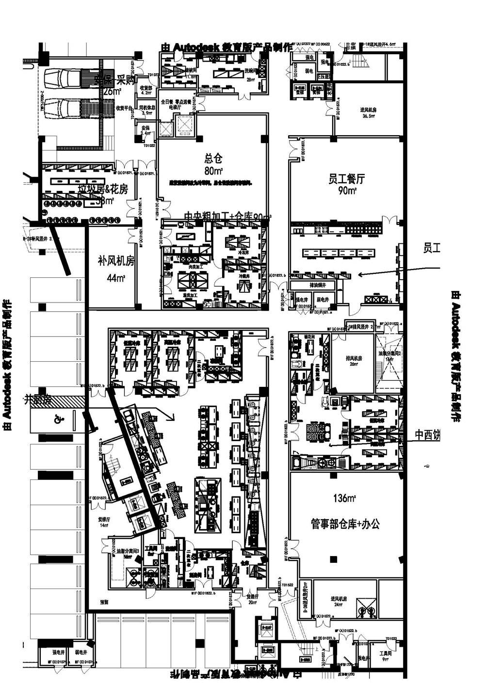
地下、地上和顶上三大部分
地下的设备和设施主要有:下水管道、上水管道、明沟、化粪池、数据线(也可以在房顶上)、电源线。这些都要根据地面上的设备摆放来确定位置和出口。
地上的设备和设施主要有:炒灶、燃料管道、电源线、上水管道、排水管道、保鲜柜、工作台、冰箱、水台、洗菜水池、洗碗水池、涮拖把水池、消毒柜、碗橱、垃圾桶、工具箱、冷库、排风(上半部分在房顶上)、送新风、运水烟罩净化器、菜单打印机、监控摄像头、电源控制箱、消防栓、防火门、灭火器、地砖、地漏等。
房顶上的设备和设施主要有:电源线、数据线、吊顶(防火材料)、吊顶龙骨、各种线路和吊顶的挂件、排风管道、监控摄像机电源线。以上这些设备设施根据房屋结构,要设计明确的位置。
虽然商厨的形式千差万别,但在施工上有些数据是可以确定的。
1、例如下水:里面下水管拐弯处的位置深度离地面不得大于20cm,和进入化粪池的入口落差不得小于20cm(距离在30m之内),以保持水的压力能够迅速流出,根据出水量确定排水管道的直径。
2、地面到房顶的距离应在2.4m。凳子的高度是45cm,人体身高以170cm为标准,加一起为2.15m。这样的高度正好能够在搞卫生时人的适合的工作空间。
3、排烟罩的外沿底边,也就是站人的一边距里地面为190cm,距离炒灶的外沿距离为30cm。这样的距离是合适的的人体站立空间。排烟罩的内沿底边距离地面为185cm。这样的落差能够使污油顺利的流到里面的污油盒里,方便清洗,保持卫生。

